Teunisbloemlaan 30, 3452 CB Vleuten

Omschrijving

LICHT & RUIM APPARTEMENT (CA. 111 M², ENERGIELABEL A) MET ZONNIG TERRAS EN VRIJ UITZICHT, RIANTE WOONKAMER, TWEE SLAAPKAMERS EN ZONNEPANELEN IN HET GEMOEDELIJKE VLEUTERWEIDE

- kom deze woning vrijblijvend bekijken tijdens het open huis op zaterdag 7 december tussen 11.00 en 12.00 uur -

Dit bijzondere appartement, type maisonnette, is ontstaan uit een uniek concept dat het beste van twee werelden combineert. Je geniet hier van de ruimte en het comfort van een eengezinswoning, terwijl je tegelijkertijd onderdeel bent van een actieve VvE. Hierdoor hoef je je geen zorgen te maken over toekomstig onderhoud, want hiervoor is een gedegen plan opgesteld.

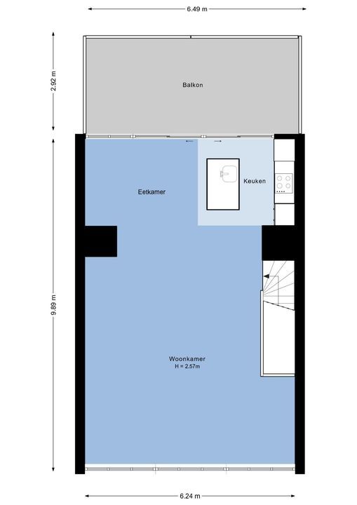
Het appartement zelf beschikt over kenmerken die het woongenot aanzienlijk verhogen. De woonkamer bevindt zich op de 2e verdieping en dankzij de grote raampartijen heb je een prachtig uitzicht én veel lichtinval. De ruimte is ruim opgezet met een gezellige eetkamer en open keuken. Via een schuifpui grenst de woonkamer aan het zonnige terras op het zuiden. Door de hoge ligging en het ontbreken van aangrenzende complexen geniet je hier van een fantastisch uitzicht en een hoge mate van privacy.

Op de slaapverdieping, één verdieping lager, bevinden zich twee ruime en praktisch ingedeelde slaapkamers, waarvan één voorzien is van een vaste kastenwand. Vanuit de hal bereik je ook het separate toilet en de verzorgde, moderne badkamer met inloopdouche en wastafel met meubel.

De begane grond biedt een ruime entree, ideaal voor een warm welkom van je gasten, en toegang tot de inpandige berging met ruimte voor opslag, fietsen, CV-ketel en opstelplaats voor wasmachine en droger.

Het complex is gebouwd in 2005, met hoogwaardige isolatiemaatregelen en isolerende beglazing. Hierdoor heeft het appartement een gunstig energielabel A. Vleuterweide, de wijk waarin dit appartement gelegen is, staat bekend om zijn ruime opzet, veel groen en gemoedelijke sfeer. Er is een gevarieerde mix van woningen en bewoners, en alle dagelijkse voorzieningen zijn op korte afstand bereikbaar. Station Vleuten is binnen enkele minuten bereikbaar, en ook het centrum van Utrecht is goed per fiets te bereiken.

Ben je op zoek naar een comfortabel appartement met ruime woonoppervlakte en een heerlijk terras? Dit appartement biedt alle ingrediënten voor jarenlang woonplezier op een fijne locatie. Maak direct een afspraak voor een bezichtiging.

DUURZAAMHEID & ENERGIELABEL
Het appartement heeft energielabel A, voornamelijk dankzij de hoogwaardige isolatiematerialen die bij de bouw in 2005 zijn toegepast. Na het uitgeven van dit energielabel zijn erin 2023 zonnepanelen geplaatst ten behoeve van het individuele gebruik.

DE OMGEVING
De Teunisbloemlaan ligt in de populaire wijk Vleuterweide. Op steenworpafstand ligt winkelcentrum Vleuterweide met diverse winkels, supermarkten, restaurants, scholen en kinderopvang. Het appartement ligt op 5 minuten loopafstand van de bushalte en op 5 minuten fietsafstand van station Vleuten. Daarnaast is de ligging gunstig ten opzichte van uitvalswegen (A12 en knooppunt Oudenrijn). Parkeren kan gratis op straat. In de directe omgeving vind je ook het Maximapark en de Haarrijnse Plas, ideale plekken om te ontspannen.

INDELING & VOORZIENINGEN
Op de begane grond bevindt zich een riante entree/hal met meterkast en toegang tot de inpandige berging. De berging is ingericht met een opstelplaats voor de CV, was- en droogmachine. Daarnaast is er voldoende ruimte voor opslag en het plaatsen van fietsen.

De eerste verdieping is efficiënt ingedeeld en vormt de slaapverdieping. Hier bevinden zich twee riante slaapkamers, zowel aan de voor- als achterzijde. Deze verdieping is voorzien van een verzorgde laminaatvloer en lichte, strakke wandafwerking. Vanuit de centrale hal bereik je de moderne badkamer, uitgevoerd met smaakvol en neutraal tegelwerk, een inloopdouche en een wastafel met meubel. Daarnaast is er een separaat toilet dat eveneens in verzorgde en moderne staat verkeert.

Op de tweede verdieping bevindt zich de fantastische woonverdieping met grote raampartijen aan zowel de voor- als achterzijde. Hier wordt een hoge mate van privacy gecombineerd met bijzonder aangenaam lichtinval en een prachtig uitzicht. De kamer strekt zich over vrijwel de hele verdieping en biedt voldoende ruimte voor een riante zitkamer en een grote woonkeuken. De wanden zijn licht afgewerkt en de warme houten vloer zorgt voor een huiselijk gevoel. De keuken is voorzien van de nodige inbouwapparatuur, waaronder een inductiekookplaat met ingebouwd afzuigsysteem, een vaatwasser en een koel- en vrieskast. Via de schuifdeuren in de woon- en eetkamer bereik je het riante en zonnige terras, dat op het zuiden ligt en dus een ideale zonligging heeft. Door de ligging op de tweede verdieping geniet je bovendien van een fantastisch uitzicht en een bijzonder hoge mate van privacy.

KENMERKEN & BIJZONDERHEDEN
• Woonoppervlak ca.: 111 m2;
• Aantal kamers: 4 kamers (waarvan 2 slaapkamers en bergkamer op de begane grond);
• Bouwjaar ca.: 2005;
• Verwarming en warm water middels Cv-ketel (2016);
• Woning is volledig geïsoleerd, energielabel A (nadien zijn er nog zonnepanelen geplaatst);
• Op steenworp afstand van winkelcentrum Vleuterweide en goed gesitueerd ten opzichte van uitvalswegen;
• Gratis parkeren op de openbare weg;
• VvE is actief, servicekosten €104,-- per maand;
• Oplevering in overleg.

Kenmerken

Overdracht

Prijs
€ 500,000 k.k.
Bijdrage VVE
€ 104
Status
Beschikbaar
Oplevering
In overleg

Bouw

Soort appartement
Maisonnette, Appartement
Woonlaag
1
Soort bouw
Bestaande bouw
Bouwjaar
2005
Onderhoud binnen
Goed
Onderhoud buiten
Goed

Oppervlakten en inhoud

Woonoppervlakte
111m²
Inhoud
379m³

Indeling

Aantal kamers
4
Aantal slaapkamers
2
Aantal badkamers
1
Aantal verdiepingen
3
Voorzieningen
Mechanische ventilatie, TV-Kabel, Schuifpui, Natuurlijke ventilatie

Energie

Energielabel
A
Isolatie
Volledig geisoleerd
Warm water
C.V.-ketel
Verwarming
C.V.-ketel
Ketel
(2016, Combi-ketel, Eigendom)

Buitenruimte

Ligging
Aan rustige weg, In woonwijk, Vrij uitzicht
Balkon
Ja
Tuin
Zonneterras
Schuur
Inpandig

Plattegronden

Interesse in deze woning?
Stel een vraag of maak een bezichtigingsafspraak.

Uw bericht is naar ons verzonden. Wij nemen zo snel mogelijk contact met u op.

Sorry, we kunnen helaas niet met zekerheid vaststellen of je een mens of een geautomatiseerde bot/spammer bent. Hierdoor kunnen we het formulier dat je hebt ingevuld niet verzenden. Probeer het opnieuw of neem direct contact op met de makelaar via e-mail.

Er is iets mis gegaan met het versturen van het formulier.
Controleer of u alle velden (goed) heeft ingevoerd en probeer het nog een keer.

recaptcha
reCAPTCHA
PrivacyTerms
van

Goedemiddag 👋

Benieuwd naar de waarde van jouw huis?

Je weet het in 1 minuut. Laten we beginnen!

Wat is de reden van jouw aanvraag?
Ik wil graag...

Er zijn meerdere antwoorden mogelijk.

Wanneer wil je verhuizen?

We zijn er bijna 🎉

Om het rapport op te maken hebben we een aantal gegevens nodig

recaptcha
reCAPTCHA
PrivacyTerms

Jouw woningwaarde wordt berekend... 🚀

loading

Bedankt %name%! De woningwaarde van %address% is berekend 🥳

Check je mail voor het rapport!

success
Wat is mijn huis waard?