Rijnlaan 53 BS, 3522 BC Utrecht

Omschrijving

KARAKTERISTIEKE & RUIME JAREN ’30 BOVENWONING MET 4 KAMERS, TWEE BUITENRUIMTES, VEEL AUTHENTIEKE DETAILS OP EEN FANTASTISCHE LOCATIE NABIJ HET CENTRUM VAN UTRECHT
Deze karakteristieke jaren ’30 woning is zeer ruim van formaat en bevindt zich op een aantrekkelijke locatie op korte afstand van het bruisende centrum van Utrecht. De buurt kenmerkt zich door sfeervolle straten, gezellige voorzieningen in de directe omgeving en uitstekende bereikbaarheid met zowel de fiets als het openbaar vervoer. Hier woon je rustig, maar met alle stadse gemakken binnen handbereik.

De woning is door de jaren heen met zorg bewoond. Dankzij het geplaatste HR- en HR+-glas beschikt het huis over comfortabele isolatie en een prettig binnenklimaat. Verder zijn veel geliefde jaren ’30 details behouden, zoals de paneeldeuren, inbouwkasten en de charmante schouw in de woonkamer. Dit alles zorgt voor een warme, authentieke uitstraling in combinatie met hedendaags wooncomfort.

Binnen beschikt de woning over een royale, lichte woonkamer en eetkamer die door de grote raampartijen een bijzonder prettige sfeer hebben. De klassieke en-suite uitstraling – mede door de vaste inbouwkasten – geeft de ruimte karakter en biedt volop mogelijkheden voor een royale zithoek én een ruime eethoek. De gesloten keuken is netjes, praktisch ingedeeld en uitgerust met diverse inbouwapparatuur, waaronder een 4-pits gasfornuis met afzuigkap in de originele schouw (zonder mechanische afzuiging), een combi-oven, vaatwasser en koel-vriescombinatie. Vanuit de keuken stap je direct het heerlijke westelijk gelegen balkon op: ideaal voor een moment in de middag- en avondzon.

Op de eerste slaapverdieping vind je twee slaapkamers, waaronder een brede master bedroom en een tweede ruime slaapkamer aan de achterzijde. De nette badkamer is voorzien van een ligbad, douche en dubbele wastafel. Via de overloop bereik je het royale dakterras op het westen, waar je gedurende de zomermaanden tot laat in de avond van de zon kunt genieten. Hier heb je volop ruimte voor een loungeset en een royale buitentafel – een bijzonder fijne plek om te ontspannen of te borrelen met vrienden.

Kortom: een sfeervolle, ruime en charmante jaren ’30 bovenwoning met twee heerlijke buitenruimtes, veel authentieke details en prettig wooncomfort dankzij HR/HR++-glas. Een fantastische plek om jarenlang met plezier te wonen, vlak bij alles wat Utrecht zo geliefd maakt.

DUURZAAMHEID & ENERGIELABEL
Het appartement beschikt over een label C en is geldig tot juli 2034.

DE OMGEVING
De woning heeft een ideale ligging. Binnen no time sta je op het Centraal Station of station Vaartsche Rijn en ben je zo in de bruisende binnenstad.
De Rivierenwijk is een gezellige wijk met een goede balans tussen levendigheid en rust en is met de auto goed bereikbaar. Supermarkten, winkels en dagelijkse voorzieningen zijn op loopafstand, om de hoek aan de Rijnlaan bevinden zich een Albert Heijn, een warme bakker, de keurslager en overige winkels. Voor een hapje en/of een drankje kan je op korte loopafstand goed terecht aan de fraaie Veilinghaven, de Croeselaan en Rotsoord met diverse eigentijdse horeca en gezellige terrassen. Daarnaast loop je via de Westerkade zo naar het gezellige Ledig Erf en de prachtige oude Utrechtse binnenstad.
Voor de afwisseling sta je binnen een kwartier fietsen in de bossen van Amelisweerd.

INDELING & VOORZIENINGEN
Begane grond
Je betreedt deze karakteristieke woning via de hal.

Eerste verdieping
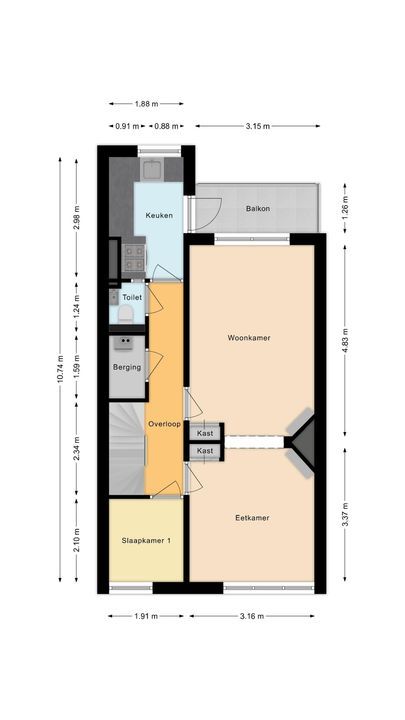
Via de hal kom je op een ruime overloop met toegang tot een inpandige berging met opstelplaats voor de cv-installatie, wasmachine en droger. Daarnaast bevindt zich hier een separaat toilet met fontein.

Loop je door, dan bereik je de riante woonkamer. Deze is voorzien van een nette laminaatvloer en een charmante schouw. Dankzij de grote ramen — uitgevoerd met HR- en HR++-glas — geniet je hier van een uitstekende lichtinval én goede isolatie. De woonkamer loopt naadloos over in de eetkamer. Aan beide zijden bevinden zich klassieke inbouwkasten, perfect voor servies of andere spullen. De originele paneeldeuren zijn behouden, wat de ruimte een stijlvolle en authentieke uitstraling geeft.

De woonkamer is royaal van formaat en biedt voldoende ruimte voor een grote hoekbank en een ruime eettafel, ideaal om te dineren met vrienden en familie.

De gesloten keuken is netjes en van alle gemakken voorzien. Zo vind je hier diverse inbouwapparatuur: een 4-pits gasfornuis met afzuigkap in de originele schouw, een combi-oven, vaatwasser en koel-vriescombinatie. Vanuit de keuken heb je toegang tot het eerste balkon, gelegen op het westen.

Via de overloop bereik je tevens de kleinste slaapkamer, perfect in te richten als babykamer, kantoor of hobbyruimte.

Tweede verdieping
De tweede verdieping beschikt over twee ruime slaapkamers. De slaapkamer aan de voorzijde is ideaal als master bedroom en biedt voldoende ruimte voor een tweepersoonsbed en een garderobekast. De slaapkamer aan de achterzijde is vergelijkbaar in formaat.

Vanaf de overloop heb je toegang tot de nette badkamer, voorzien van een ligbad, douche en dubbele wastafel.

Via dezelfde overloop bereik je het royale dakterras, eveneens gelegen op het westen. Hier kun je in de zomer heerlijk genieten van rust, zon en privacy — met het bruisende centrum van Utrecht op korte afstand.

KENMERKEN & BIJZONDERHEDEN
• Woonoppervlak ca.: 86 m²;
• Aantal kamers: (4 waarvan 3 slaapkamers);
• Bouwjaar: 1930;
• Warm water en verwarming middels Cv-ketel (2012);
• Energielabel C;
• Goed gesitueerd ten opzichte van het openbaar vervoer (station Vaartsche Rijn & Utrecht Centraal);
• Balkon- en dakterras gelegen op het westen waardoor er altijd een plek in de zon én schaduw te vinden is
• Betaald parkeren of met vergunning op de openbare weg;
• VvE is actief, de servicekosten bedragen thans €32,- per maand;
• Oplevering in overleg.

Kenmerken

Overdracht

Prijs
€ 449,000 k.k.
Bijdrage VVE
€ 32
Status
Beschikbaar
Oplevering
In overleg

Bouw

Soort appartement
Bovenwoning
Woonlaag
1
Soort bouw
Bestaande bouw
Bouwjaar
1930
Onderhoud binnen
Goed
Onderhoud buiten
Goed

Oppervlakten en inhoud

Woonoppervlakte
86m²
Inhoud
321m³

Indeling

Aantal kamers
4
Aantal slaapkamers
3
Aantal badkamers
1
Aantal verdiepingen
2
Voorzieningen
TV-Kabel, Natuurlijke ventilatie

Energie

Energielabel
C
Isolatie
HR-glas
Warm water
C.V.-ketel
Verwarming
C.V.-ketel
Ketel
Vaillant (2012, Combi-ketel, Eigendom)

Buitenruimte

Balkon
Ja
Schuur
Vrijstaand steen

Plattegronden

Interesse in deze woning?
Stel een vraag of maak een bezichtigingsafspraak.

Uw bericht is naar ons verzonden. Wij nemen zo snel mogelijk contact met u op.

Sorry, we kunnen helaas niet met zekerheid vaststellen of je een mens of een geautomatiseerde bot/spammer bent. Hierdoor kunnen we het formulier dat je hebt ingevuld niet verzenden. Probeer het opnieuw of neem direct contact op met de makelaar via e-mail.

Er is iets mis gegaan met het versturen van het formulier.
Controleer of u alle velden (goed) heeft ingevoerd en probeer het nog een keer.

recaptcha
reCAPTCHA
PrivacyTerms

Vergelijkbare woningen

Wageningseberg 24, Utrecht
€ 425,000 k.k.
  • Portiekflat
  • 69m²
  • 2
Gerhardstraat 35, Utrecht
€ 400,000 k.k.
  • Galerijflat
  • 71m²
  • 2
Amsterdamsestraatweg 831, Utrecht
€ 365,000 k.k.
  • Benedenwoning
  • 52m²
  • 2
van

Goedemorgen 👋

Benieuwd naar de waarde van jouw huis?

Je weet het in 1 minuut. Laten we beginnen!

Wat is de reden van jouw aanvraag?
Ik wil graag...

Er zijn meerdere antwoorden mogelijk.

Wanneer wil je verhuizen?

We zijn er bijna 🎉

Om het rapport op te maken hebben we een aantal gegevens nodig

recaptcha
reCAPTCHA
PrivacyTerms

Jouw woningwaarde wordt berekend... 🚀

loading

Bedankt %name%! De woningwaarde van %address% is berekend 🥳

Check je mail voor het rapport!

success
Wat is mijn huis waard?