Ravellaan 109, 3533 JK Utrecht

Omschrijving

BIJZONDER RUIM APPARTEMENT MET 4 KAMERS EN BALKON MET BERGING IN POPULAIRE WIJK
In de wijk Welgelegen - nabij Oog in Al - ligt dit praktisch ingedeelde 4-kamer appartement met balkon en berging in de onderbouw. Het appartement is, in tegenstelling hetgeen op de foto's, voorzien van een vernieuwde vloerafwerking.

DE OMGEVING
Het appartement is gelegen nabij het winkelcentrum Oog in Al en diverse recreatievoorzieningen, zoals park Oog in Al, zwembad, fitnesscentrum en een tennisbaan. Het Centraal Station en het Centrum van Utrecht liggen op minder dan 10 minuten fietsafstand en de uitvalsweg A2 is snel te bereiken.

INDELING & VOORZIENINGEN
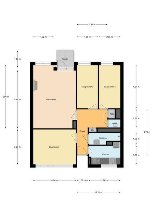
Begane grond: Entree, bergingen, trap en lift naar verdiepingen
4e verdieping: Entree, hal, dichte keuken, badkamer met was-droogcombinatie, wastafel en douche, slaapkamer voorzijde, woonkamer met toegang tot balkon, 2 slaapkamers achterzijde, toilet, bergkast en meterkast.

KENMERKEN & BIJZONDERHEDEN
• Woonoppervlak ca.: 75 m2
• Aantal kamers: 4 (3 slaapkamers)
• Bouwjaar ca.: 1960
• Verwarming en warm water middels blokverwarming en geiser
• Goed gesitueerd ten opzichte van uitvalswegen
• De huurperiode bedraagt maximaal 2 jaar
• Wij verhuren niet aan studenten of bedrijven, LET OP: Woningdelers (maximaal 2) zijn, mits aantoonbaar werkend, toegestaan.
• Inclusief servicekosten, water en opstalverzekering
• Oplevering in overleg

Kenmerken

Overdracht

Prijs
€ 1,550 p.m. ex.
Status
Archief
Oplevering
In overleg

Bouw

Soort appartement
Galerijflat, Appartement
Woonlaag
Soort bouw
Bestaande bouw
Bouwjaar
1960
Onderhoud binnen
Goed
Onderhoud buiten
Goed

Oppervlakten en inhoud

Woonoppervlakte
75m²
Inhoud
246m³

Indeling

Aantal kamers
4
Aantal slaapkamers
3
Aantal badkamers
1
Aantal verdiepingen
1
Voorzieningen
TV-Kabel

Energie

Energielabel
C
Isolatie
Dubbel glas
Warm water
Geiser eigendom
Verwarming
Blokverwarming

Buitenruimte

Ligging
In woonwijk
Balkon
Ja
Schuur
Box

Plattegronden

Interesse in deze woning?
Stel een vraag of maak een bezichtigingsafspraak.

Uw bericht is naar ons verzonden. Wij nemen zo snel mogelijk contact met u op.

Sorry, we kunnen helaas niet met zekerheid vaststellen of je een mens of een geautomatiseerde bot/spammer bent. Hierdoor kunnen we het formulier dat je hebt ingevuld niet verzenden. Probeer het opnieuw of neem direct contact op met de makelaar via e-mail.

Er is iets mis gegaan met het versturen van het formulier.
Controleer of u alle velden (goed) heeft ingevoerd en probeer het nog een keer.

recaptcha
reCAPTCHA
PrivacyTerms
van

Goedenavond 👋

Benieuwd naar de waarde van jouw huis?

Je weet het in 1 minuut. Laten we beginnen!

Wat is de reden van jouw aanvraag?
Ik wil graag...

Er zijn meerdere antwoorden mogelijk.

Wanneer wil je verhuizen?

We zijn er bijna 🎉

Om het rapport op te maken hebben we een aantal gegevens nodig

recaptcha
reCAPTCHA
PrivacyTerms

Jouw woningwaarde wordt berekend... 🚀

loading

Bedankt %name%! De woningwaarde van %address% is berekend 🥳

Check je mail voor het rapport!

success
Wat is mijn huis waard?